【A号棟】南区新築戸建 LDK18帖以上 2路線2駅利用可 神奈川県横浜市南区清水ケ丘|4,880万円の新築一戸建て|センチュリー21マイホーム
| 価格 | 4,880万円 ![]() |
||||
|---|---|---|---|---|---|
| 所在地 | 神奈川県横浜市南区清水ケ丘
この地域周辺の物件を見る |
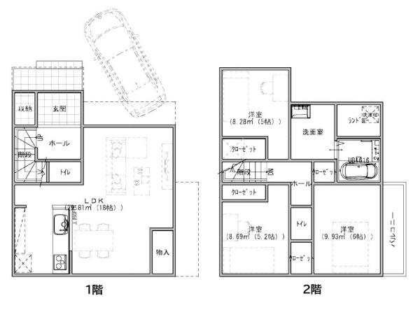
土地面積 | 89.44m² (27.05坪) | 建物面積 | 93.36m2 |
| 築年月 | 2026年8月築 | 間取り | 3LDK (-) | ||
| 交通 |
京急本線 南太田 徒歩14分
|
||||
| 特徴 |
|
|---|---|
| セールスコメント | カースペース有。3棟販売。 |
| 採光面 | - | 構造/階数 | 木造/地上2階建 |
|---|---|---|---|
| 建ぺい率 | 60(%) | 容積率 | 150(%) |
| 駐車場 | 有 | 現況/引渡し | 建築中/相談 |
| 土地権利 | 所有権 | 私道負担面積 | - |
| 接道状況 | 接道: 北 道路幅: 3.7m 接道: 東 道路幅: 3.7m |
用途地域 |
第二種中高層住居専用地域
|
| セットバック | - | 法令上の制限 | - |
| 地目 | 宅地 | 地勢 | |
| 建築確認番号 | 第25UDI1K建02580号 | 都市計画 | 市街化区域 |
| 取引態様 | 仲介 | ||
| 情報更新日 | 2026年04月19日 | 次回更新日 | 2026年05月03日 |
| 小学校区 | 横浜市立太田小学校 (神奈川県横浜市南区) この学区の他の物件を見る |
中学校区 | 蒔田中学校 (神奈川県横浜市南区) この学区の他の物件を見る |
|---|
| 価格 | 万円 | ||
|---|---|---|---|
| 年利率 | % |
||
| ボーナス払い | 返済年数 | ||
| 頭金 | 直接入力する | 万円 | |

毎月のご返済額 |
ボーナス(×年2回) |
物件価格4,880万円 |
![]() |
![]() |
横浜市南区清水ケ丘
4380万円〜4880万円 |
通勤・通学に便利な2駅2路線利用可能です◎閑静な住宅街で子育て世帯にぴったり♪