横浜市神奈川区新築戸建 宅配ボックス ペニンシュラキッチン 神奈川県横浜市神奈川区白幡西町|5,780万円の新築一戸建て|センチュリー21マイホーム
| 価格 | 5,780万円 ![]() |
||||
|---|---|---|---|---|---|
| 所在地 | 神奈川県横浜市神奈川区白幡西町
この地域周辺の物件を見る |
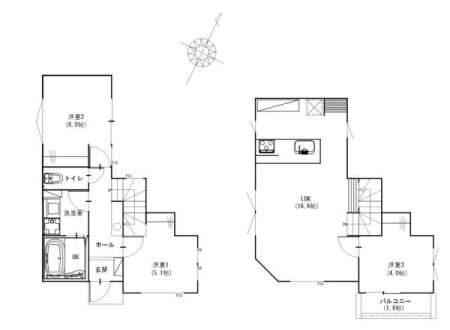
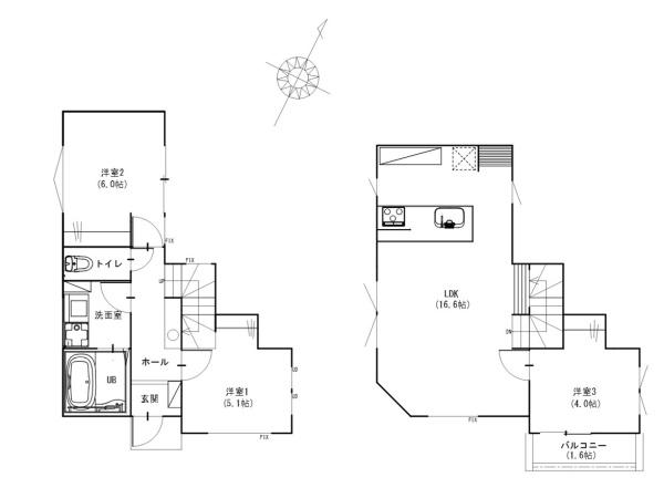
土地面積 | 106.3m² (32.15坪) | 建物面積 | 71.83m2 |
| 築年月 | 2026年3月築 | 間取り | 3LDK (-) | ||
| 交通 |
東急東横線 東白楽 徒歩6分
JR横浜線 東神奈川 徒歩11分 京急本線 神奈川新町 徒歩13分 |
||||
| 特徴 |
|
|---|---|
| セールスコメント | カースペース有。 |
| 採光面 | - | 構造/階数 | 木造/地上2階建 |
|---|---|---|---|
| 建ぺい率 | 50(%) | 容積率 | 100(%) |
| 駐車場 | 有 | 現況/引渡し | 建築中/相談 |
| 土地権利 | 所有権 | 私道負担面積 | - |
| 接道状況 | 接道: 東 2.9m 公道 道路幅: 4m | 用途地域 |
第一種低層住居専用地域
|
| セットバック | - | 法令上の制限 | - |
| 地目 | 宅地 | 地勢 | |
| 建築確認番号 | 第2025SBC-確01178H号 | 都市計画 | 市街化区域 |
| 取引態様 | 仲介 | ||
| 情報更新日 | 2026年02月07日 | 次回更新日 | 2026年02月21日 |
| 小学校区 | 横浜市立浦島小学校 (神奈川県横浜市神奈川区) この学区の他の物件を見る |
中学校区 | 浦島丘中学校 (神奈川県横浜市神奈川区) この学区の他の物件を見る |
|---|
| 価格 | 万円 | ||
|---|---|---|---|
| 年利率 | % |
||
| ボーナス払い | 返済年数 | ||
| 頭金 | 直接入力する | 万円 | |

毎月のご返済額 |
ボーナス(×年2回) |
物件価格5,780万円 |
ガス式乾燥機・浴室乾燥暖房・セカンド洗面台etc...家事時短が叶うトレンド住宅設備付き◎