【A号棟】旭区新築戸建 カースぺ 庭付き 南向き 神奈川県横浜市旭区今宿2丁目|5,190万円の新築一戸建て|センチュリー21マイホーム
| 価格 | 5,190万円 ![]() |
||||
|---|---|---|---|---|---|
| 所在地 | 神奈川県横浜市旭区今宿2丁目
この地域周辺の物件を見る |
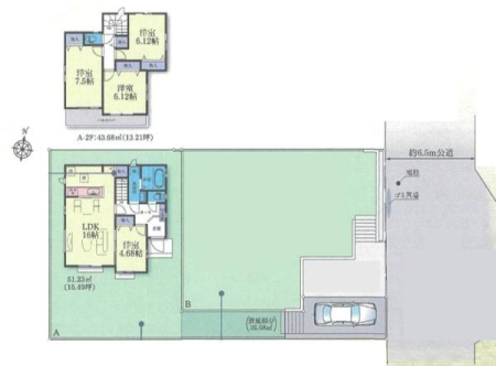
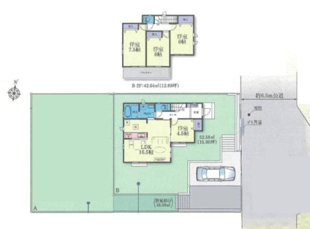
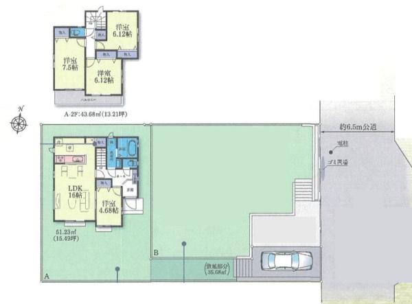
土地面積 | 167.46m² (50.65坪) | 建物面積 | 94.91m2 |
| 築年月 | 2026年3月築 | 間取り | 4LDK (-) | ||
| 交通 |
相鉄本線 二俣川 バス8分 ニュータウン第5 停歩3分
|
||||
| 特徴 |
|
|---|---|
| セールスコメント | カースペース有。2棟販売。 |
| 採光面 | - | 構造/階数 | 木造/地上2階建 |
|---|---|---|---|
| 建ぺい率 | 40(%) | 容積率 | 80(%) |
| 駐車場 | 有 | 現況/引渡し | 新築/相談 |
| 土地権利 | 所有権 | 私道負担面積 | - |
| 接道状況 | 接道: 東 道路幅: 6.5m | 用途地域 |
第一種低層住居専用地域
|
| セットバック | - | 法令上の制限 | - |
| 地目 | 宅地 | 地勢 | |
| 建築確認番号 | 第HPA-25-11941-1号 | 都市計画 | 市街化区域 |
| 取引態様 | 仲介 | ||
| 情報更新日 | 2026年04月18日 | 次回更新日 | 2026年05月02日 |
| 小学校区 | 横浜市立中沢小学校 (神奈川県横浜市旭区) この学区の他の物件を見る |
中学校区 | 旭中学校 (神奈川県横浜市旭区) この学区の他の物件を見る |
|---|
| 価格 | 万円 | ||
|---|---|---|---|
| 年利率 | % |
||
| ボーナス払い | 返済年数 | ||
| 頭金 | 直接入力する | 万円 | |

毎月のご返済額 |
ボーナス(×年2回) |
物件価格5,190万円 |
![]() |
![]() |
横浜市旭区今宿2丁目
5190万円〜5590万円 |
小・中学校が徒歩4分圏内にあり子育てのしやすい住環境です!ガーデニングも楽しめる庭付◎