港北区売地 建築条件無し 駅歩7分 フラットアプローチ 神奈川県横浜市港北区篠原東3丁目|5,500万円の土地|センチュリー21マイホーム
| 価格 | 5,500万円 ![]() |
||||
|---|---|---|---|---|---|
| 所在地 | 神奈川県横浜市港北区篠原東3丁目
この地域周辺の物件を見る |
土地面積 | 105.78m² (31.99坪) | 坪単価 | 171.88万円 /坪 |
| 交通 |
東急東横線 妙蓮寺 徒歩7分
JR横浜線 菊名 徒歩17分 横浜市営地下鉄ブルーライン 岸根公園 徒歩19分 |
建ぺい率 | 40 % | 容積率 | 80 % |
| 特徴 |
|
|---|---|
| セールスコメント | - |
| 建築条件 | なし | 土地権利 | 所有権 |
|---|---|---|---|
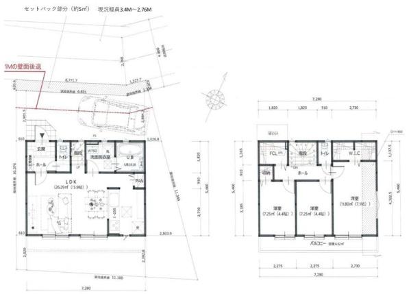
| 現況/引渡し | 更地/即時 | 接道状況 | 接道: 北 道路幅: 2.8m |
| 私道負担面積 | - | セットバック | - |
| 地勢 | 地目 | 宅地 | |
| 用途地域 | 第一種低層住居専用地域 | 都市計画 | 市街化区域 |
| 法令上の制限 | - | 国土法届出 | 不要 |
| 取引態様 | 仲介 | ||
| 情報更新日 | 2026年04月20日 | 次回更新日 | 2026年05月04日 |
| 小学校区 | 横浜市立篠原小学校 (神奈川県横浜市港北区) この学区の他の物件を見る |
中学校区 | 篠原中学校 (神奈川県横浜市港北区) この学区の他の物件を見る |
|---|
| 価格 | 万円 | ||
|---|---|---|---|
| 年利率 | % |
||
| ボーナス払い | 返済年数 | ||
| 頭金 | 直接入力する | 万円 | |

毎月のご返済額 |
ボーナス(×年2回) |
物件価格5,500万円 |
建築条件無しに付きお好きなハウスメーカーで建てられます◎閑静な住宅街で子育て世帯にぴったり♪