【1号棟】藤沢市新築戸建 2台駐車可 LDK18帖 神奈川県藤沢市大鋸|4,980万円の新築一戸建て|センチュリー21マイホーム
| 価格 | 4,980万円 ![]() |
||||
|---|---|---|---|---|---|
| 所在地 | 神奈川県藤沢市大鋸
この地域周辺の物件を見る |
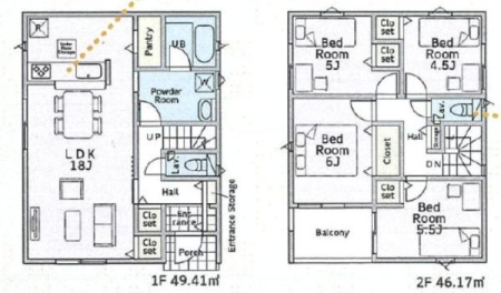
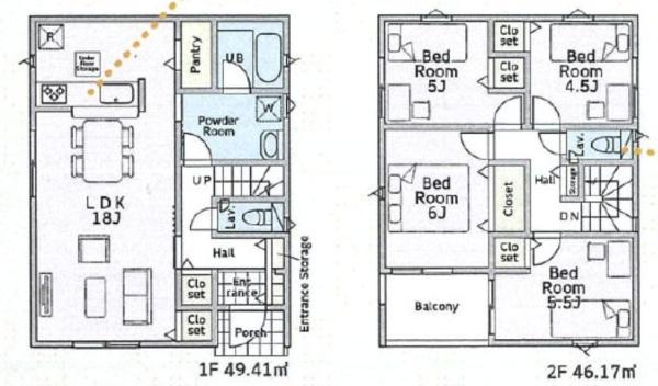
土地面積 | 123.64m² (37.4坪) | 建物面積 | 95.58m2 |
| 築年月 | 2026年3月築 | 間取り | 4LDK (-) | ||
| 交通 |
小田急江ノ島線 藤沢本町 徒歩24分
|
||||
| 特徴 |
|
|---|---|
| セールスコメント | カースペース有。 |
| 採光面 | - | 構造/階数 | 木造/地上2階建 |
|---|---|---|---|
| 建ぺい率 | 60(%) | 容積率 | 160(%) |
| 駐車場 | 有 | 現況/引渡し | 新築/相談 |
| 土地権利 | 所有権 | 私道負担面積 | - |
| 接道状況 | 接道: 南 道路幅: 4m | 用途地域 |
第一種低層住居専用地域
|
| セットバック | - | 法令上の制限 | - |
| 地目 | 宅地 | 地勢 | |
| 建築確認番号 | 第KBI-SGM25-10-4247号 | 都市計画 | 市街化区域 |
| 取引態様 | 仲介 | ||
| 情報更新日 | 2026年04月18日 | 次回更新日 | 2026年05月02日 |
| 小学校区 | () |
中学校区 | 藤ヶ岡中学校 (神奈川県藤沢市) この学区の他の物件を見る |
|---|
| 価格 | 万円 | ||
|---|---|---|---|
| 年利率 | % |
||
| ボーナス払い | 返済年数 | ||
| 頭金 | 直接入力する | 万円 | |

毎月のご返済額 |
ボーナス(×年2回) |
物件価格4,980万円 |
カースペースは2台駐車可能です!家族の集まるLDKは18帖と広々◎閑静な住宅街で子育て世帯にぴったり♪