川崎市新築戸建 ビルトイン車庫 駅歩4分 神奈川県川崎市川崎区田町2丁目|5,230万円の新築一戸建て|センチュリー21マイホーム
| 価格 | 5,230万円 ![]() |
||||
|---|---|---|---|---|---|
| 所在地 | 神奈川県川崎市川崎区田町2丁目
この地域周辺の物件を見る |
土地面積 | 58m² (17.54坪) | 建物面積 | 105.97m2 |
| 築年月 | 2026年6月築 | 間取り | 4LDK (-) | ||
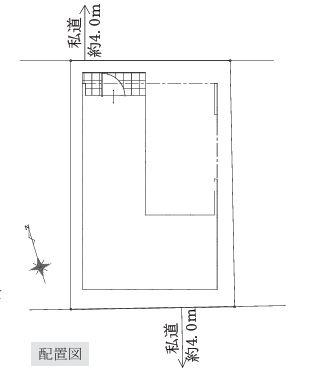
| 交通 |
京急大師線 小島新田 徒歩4分
京急大師線 大師橋 徒歩11分 京急大師線 東門前 徒歩18分 |
||||
| 特徴 |
|
|---|---|
| セールスコメント | カースペース有(建物面積に14.9平米含)。 |
| 採光面 | - | 構造/階数 | 木造/地上3階建 |
|---|---|---|---|
| 建ぺい率 | 60(%) | 容積率 | 200(%) |
| 駐車場 | 有 | 現況/引渡し | 建築中/相談 |
| 土地権利 | 所有権 | 私道負担面積 | - |
| 接道状況 | 接道: 南西 道路幅: 4m 接道: 北東 道路幅: 4m |
用途地域 |
準工業地域
|
| セットバック | - | 法令上の制限 | - |
| 地目 | 宅地 | 地勢 | |
| 建築確認番号 | 第25UDI1K建01641号 | 都市計画 | 市街化区域 |
| 取引態様 | 仲介 | ||
| 情報更新日 | 2026年05月09日 | 次回更新日 | 2026年05月23日 |
| 小学校区 | 川崎市立殿町小学校 (神奈川県川崎市川崎区) この学区の他の物件を見る |
中学校区 | 大師中学校 (神奈川県川崎市川崎区) この学区の他の物件を見る |
|---|
| 価格 | 万円 | ||
|---|---|---|---|
| 年利率 | % |
||
| ボーナス払い | 返済年数 | ||
| 頭金 | 直接入力する | 万円 | |

毎月のご返済額 |
ボーナス(×年2回) |
物件価格5,230万円 |
ビルトインガレージで雨や風から愛車を守ります♪京急大師線「小島新田」駅徒歩4分の好立地◎