鎌倉市新築戸建 カースペース3台 敷地面積77坪超 神奈川県鎌倉市腰越1丁目|9,880万円の新築一戸建て|センチュリー21マイホーム
| 価格 | 9,880万円 ![]() |
||||
|---|---|---|---|---|---|
| 所在地 | 神奈川県鎌倉市腰越1丁目
この地域周辺の物件を見る |
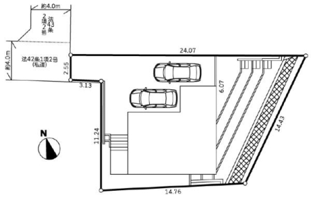
土地面積 | 255.39m² (77.25坪) | 建物面積 | 134.41m2 |
| 築年月 | 2026年10月築 | 間取り | 5LDK (-) | ||
| 交通 |
江ノ島電鉄 鎌倉高校前 徒歩4分
江ノ島電鉄 腰越 徒歩12分 湘南モノレール 片瀬山 徒歩18分 |
||||
| 特徴 |
|
|---|---|
| セールスコメント | カースペース有。 |
| 採光面 | - | 構造/階数 | 木造/地上2階建 |
|---|---|---|---|
| 建ぺい率 | 40(%) | 容積率 | 80(%) |
| 駐車場 | 有 | 現況/引渡し | 建築中/相談 |
| 土地権利 | 所有権 | 私道負担面積 | - |
| 接道状況 | 接道: 西 道路幅: 4m | 用途地域 |
第一種低層住居専用地域
|
| セットバック | - | 法令上の制限 | - |
| 地目 | 宅地 | 地勢 | |
| 建築確認番号 | 第25UDI1K建02368号 | 都市計画 | 市街化区域 |
| 取引態様 | 仲介 | ||
| 情報更新日 | 2026年05月02日 | 次回更新日 | 2026年05月16日 |
| 小学校区 | 鎌倉市立腰越小学校 (神奈川県鎌倉市) この学区の他の物件を見る |
中学校区 | 腰越中学校 (神奈川県鎌倉市) この学区の他の物件を見る |
|---|
| 価格 | 万円 | ||
|---|---|---|---|
| 年利率 | % |
||
| ボーナス払い | 返済年数 | ||
| 頭金 | 直接入力する | 万円 | |

毎月のご返済額 |
ボーナス(×年2回) |
物件価格9,880万円 |
敷地面積77坪超♪駅まで徒歩4分の立地!カースペース3台以上駐車可能♪