【B号棟】藤沢市新築戸建 2台駐車可 神奈川県藤沢市大庭|4,650万円の新築一戸建て|センチュリー21マイホーム
| 価格 | 4,650万円 ![]() |
||||
|---|---|---|---|---|---|
| 所在地 | 神奈川県藤沢市大庭
この地域周辺の物件を見る |
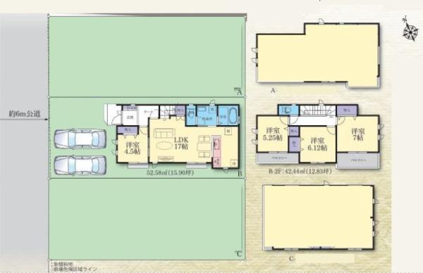
土地面積 | 119.06m² (36.01坪) | 建物面積 | 95.02m2 |
| 築年月 | 2026年7月築 | 間取り | 4LDK (-) | ||
| 交通 |
小田急江ノ島線 藤沢本町 バス10分 舟地蔵 停歩5分
小田急江ノ島線 善行 徒歩30分 JR東海道本線 辻堂 徒歩40分 |
||||
| 特徴 |
|
|---|---|
| セールスコメント | カースペース有。3棟販売。 |
| 採光面 | - | 構造/階数 | 木造/地上2階建 |
|---|---|---|---|
| 建ぺい率 | 60(%) | 容積率 | 200(%) |
| 駐車場 | 有 | 現況/引渡し | 建築中/相談 |
| 土地権利 | 所有権 | 私道負担面積 | - |
| 接道状況 | 接道: 北西 道路幅: 6m | 用途地域 |
準住居地域
|
| セットバック | - | 法令上の制限 | - |
| 地目 | 宅地 | 地勢 | |
| 建築確認番号 | 第HPA-26-00215-1号 | 都市計画 | 市街化区域 |
| 取引態様 | 仲介 | ||
| 情報更新日 | 2026年04月18日 | 次回更新日 | 2026年05月02日 |
| 小学校区 | 小糸小学校 (藤沢市) この学区の他の物件を見る |
中学校区 | 大庭中学校 (神奈川県藤沢市) この学区の他の物件を見る |
|---|
| 価格 | 万円 | ||
|---|---|---|---|
| 年利率 | % |
||
| ボーナス払い | 返済年数 | ||
| 頭金 | 直接入力する | 万円 | |

毎月のご返済額 |
ボーナス(×年2回) |
物件価格4,650万円 |
![]() |
![]() |
藤沢市大庭
4590万円〜4690万円 |
カースペース並列2台駐車可能です◎閑静な住宅街で子育て世帯にぴったり♪収納豊富でお部屋が片付きます!