【2号棟】横浜市金沢区新築戸建 ビルドインガレージ付き 神奈川県横浜市金沢区六浦3丁目|4,580万円の新築一戸建て|センチュリー21マイホーム
| 価格 | 4,580万円 ![]() |
||||
|---|---|---|---|---|---|
| 所在地 | 神奈川県横浜市金沢区六浦3丁目
この地域周辺の物件を見る |
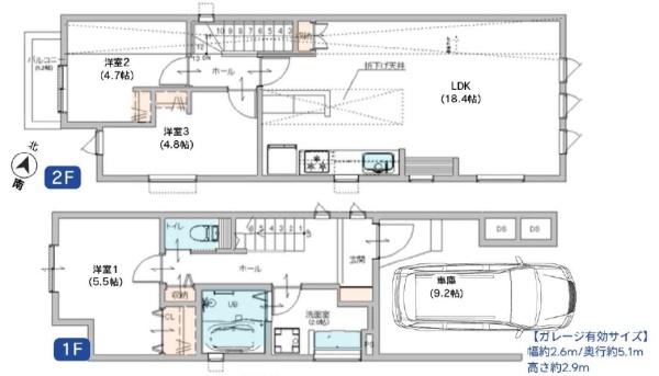
土地面積 | 100.79m² (30.48坪) | 建物面積 | 96.46m2 |
| 築年月 | 2026年7月築 | 間取り | 3LDK (-) | ||
| 交通 |
京急逗子線 六浦 徒歩16分
京急本線 金沢八景 徒歩23分/バス6分 大道小学校前 停歩10分 京急本線 金沢文庫 徒歩33分 |
||||
| 特徴 |
|
|---|---|
| セールスコメント | カースペース有。2棟販売。建物面積に車庫面積9.31平米含む。 |
| 採光面 | - | 構造/階数 | 木造/地上2階建 |
|---|---|---|---|
| 建ぺい率 | 50(%) | 容積率 | 100(%) |
| 駐車場 | 有 | 現況/引渡し | 建築中/相談 |
| 土地権利 | 所有権 | 私道負担面積 | - |
| 接道状況 | 接道: 北東 5.34m 公道 道路幅: 8m | 用途地域 |
第一種低層住居専用地域
|
| セットバック | - | 法令上の制限 | - |
| 地目 | 宅地 | 地勢 | |
| 建築確認番号 | 第2025SBC-確02474H号 | 都市計画 | 市街化区域 |
| 取引態様 | 仲介 | ||
| 情報更新日 | 2026年05月16日 | 次回更新日 | 2026年05月30日 |
| 小学校区 | 横浜市立高舟台小学校 (神奈川県横浜市金沢区) この学区の他の物件を見る |
中学校区 | 大道中学校 (神奈川県横浜市金沢区) この学区の他の物件を見る |
|---|
| 価格 | 万円 | ||
|---|---|---|---|
| 年利率 | % |
||
| ボーナス払い | 返済年数 | ||
| 頭金 | 直接入力する | 万円 | |

毎月のご返済額 |
ボーナス(×年2回) |
物件価格4,580万円 |
![]() |
![]() |
横浜市金沢区六浦3丁目
4480万円〜4580万円 |
食洗機・浴室乾燥機・ガス乾燥機etc...家事時短が叶う便利機能が充実♪収納も各居室にあります。