大和市中古戸建 2面バルコニー 神奈川県大和市下鶴間|3,299万円の中古一戸建て|センチュリー21マイホーム
| 価格 | 3,299万円 ![]() |
||||
|---|---|---|---|---|---|
| 所在地 | 神奈川県大和市下鶴間
この地域周辺の物件を見る |
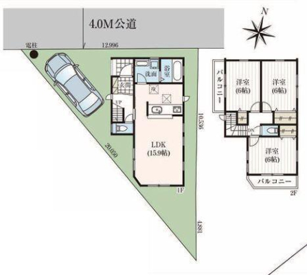
土地面積 | 99.17m² (29.99坪) | 建物面積 | 78.43m2 |
| 築年月 | 2014年1月築 | 間取り | 3LDK (-) | ||
| 交通 |
小田急江ノ島線 鶴間 徒歩17分
小田急江ノ島線 南林間 徒歩19分 東急田園都市線 つきみ野 徒歩26分 |
||||
| 特徴 |
|
|---|---|
| セールスコメント | カースペース有。 |
| 採光面 | - | 構造/階数 | 木造/地上2階建 |
|---|---|---|---|
| 建ぺい率 | 50(%) | 容積率 | 80(%) |
| 駐車場 | 有 | 現況/引渡し | 空家/相談 |
| 土地権利 | 所有権 | 私道負担面積 | - |
| 接道状況 | 接道: 北 道路幅: 4m | 用途地域 |
第一種低層住居専用地域
|
| セットバック | - | 法令上の制限 | - |
| 地目 | 宅地 | 地勢 | |
| 建築確認番号 | 都市計画 | 市街化区域 | |
| 取引態様 | 仲介 | ||
| 情報更新日 | 2026年05月24日 | 次回更新日 | 2026年06月07日 |
| 小学校区 | 大和市立林間小学校 (神奈川県大和市) この学区の他の物件を見る |
中学校区 | 鶴間中学校 (神奈川県大和市) この学区の他の物件を見る |
|---|
| 価格 | 万円 | ||
|---|---|---|---|
| 年利率 | % |
||
| ボーナス払い | 返済年数 | ||
| 頭金 | 直接入力する | 万円 | |

毎月のご返済額 |
ボーナス(×年2回) |
物件価格3,299万円 |
スーパーやコンビニ等買い物施設が徒歩圏内に揃う便利なロケーション!閑静な住宅街で子育て世帯にぴったり♪