【1号棟】大和市新築戸建 2台駐車可 LDK19帖 神奈川県大和市上和田|4,599万円の新築一戸建て|センチュリー21マイホーム
| 価格 | 4,599万円 ![]() |
||||
|---|---|---|---|---|---|
| 所在地 | 神奈川県大和市上和田
この地域周辺の物件を見る |
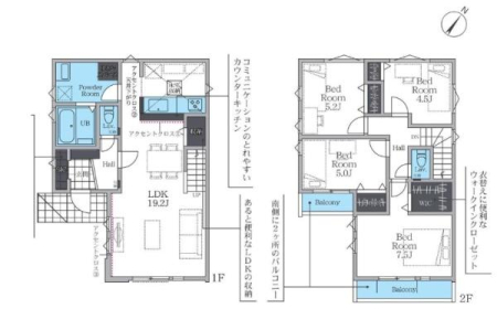
土地面積 | 100.02m² (30.25坪) | 建物面積 | 99.36m2 |
| 築年月 | 2026年1月築 | 間取り | 4LDK (-) | ||
| 交通 |
小田急江ノ島線 桜ヶ丘 徒歩15分
相鉄本線 瀬谷 徒歩29分 小田急江ノ島線 大和 徒歩34分 |
||||
| 特徴 |
|
|---|---|
| セールスコメント | カースペース有。 |
| 採光面 | - | 構造/階数 | 木造/地上2階建 |
|---|---|---|---|
| 建ぺい率 | 50(%) | 容積率 | 100(%) |
| 駐車場 | 有 | 現況/引渡し | 新築/相談 |
| 土地権利 | 所有権 | 私道負担面積 | - |
| 接道状況 | 接道: 東南 道路幅: 5m | 用途地域 |
第一種低層住居専用地域
|
| セットバック | - | 法令上の制限 | 景観法;宅地造成工事規制区域;準防火地域;日影制限有 |
| 地目 | 宅地 | 地勢 | 平坦 |
| 建築確認番号 | 都市計画 | 市街化区域 | |
| 取引態様 | 仲介 | ||
| 情報更新日 | 2026年05月16日 | 次回更新日 | 2026年05月30日 |
| 小学校区 | 大和市立桜丘小学校 (神奈川県大和市) この学区の他の物件を見る |
中学校区 | 上和田中学校 (神奈川県大和市) この学区の他の物件を見る |
|---|
| 価格 | 万円 | ||
|---|---|---|---|
| 年利率 | % |
||
| ボーナス払い | 返済年数 | ||
| 頭金 | 直接入力する | 万円 | |

毎月のご返済額 |
ボーナス(×年2回) |
物件価格4,599万円 |
家族の集まるリビングは広々LDK19帖!複数の公園が点在しており閑静な住宅街で子育て世帯にぴったり◎