金沢区新築戸建 LDK18帖 納戸 駅徒6分 神奈川県横浜市金沢区谷津町|3,880万円の新築一戸建て|センチュリー21マイホーム
| 価格 | 3,880万円 ![]() |
||||
|---|---|---|---|---|---|
| 所在地 | 神奈川県横浜市金沢区谷津町
この地域周辺の物件を見る |
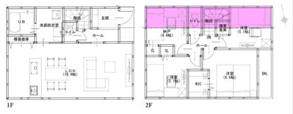
土地面積 | 112.98m² (34.17坪) | 建物面積 | 91.91m2 |
| 築年月 | 2025年6月築 | 間取り | 3SLDK (-) | ||
| 交通 |
京急本線 金沢文庫 徒歩6分
|
||||
| 特徴 |
|
|---|---|
| セールスコメント | カースペース有。 |
| 採光面 | - | 構造/階数 | 木造/地上2階建 |
|---|---|---|---|
| 建ぺい率 | 50(%) | 容積率 | 80(%) |
| 駐車場 | 有 | 現況/引渡し | 新築/相談 |
| 土地権利 | (旧法)賃借権 借地期間:20 借地料:16000 | 私道負担面積 | あり 9.16m² |
| 接道状況 | 接道: 東 道路幅: 3.5m | 用途地域 |
第一種低層住居専用地域
|
| セットバック | - | 法令上の制限 | - |
| 地目 | 宅地 | 地勢 | |
| 建築確認番号 | 都市計画 | 市街化区域 | |
| 取引態様 | 仲介 | ||
| 情報更新日 | 2026年04月18日 | 次回更新日 | 2026年05月02日 |
| 小学校区 | 横浜市立八景小学校 (神奈川県横浜市金沢区) この学区の他の物件を見る |
中学校区 | 西柴中学校 (神奈川県横浜市) この学区の他の物件を見る |
|---|
| 価格 | 万円 | ||
|---|---|---|---|
| 年利率 | % |
||
| ボーナス払い | 返済年数 | ||
| 頭金 | 直接入力する | 万円 | |

毎月のご返済額 |
ボーナス(×年2回) |
物件価格3,880万円 |
家族の集まるリビングは広々LDK18帖以上!納戸やパントリー、各居室に収納があるためお部屋が片付きます♪