磯子区中古戸建 2台駐車可 LDK21帖以上 神奈川県横浜市磯子区杉田8丁目|4,480万円の中古一戸建て|センチュリー21マイホーム
| 価格 | 4,480万円 ![]() |
||||
|---|---|---|---|---|---|
| 所在地 | 神奈川県横浜市磯子区杉田8丁目
この地域周辺の物件を見る |
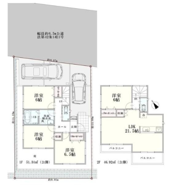
土地面積 | 122.84m² (37.15坪) | 建物面積 | 98.26m2 |
| 築年月 | 2014年2月築 | 間取り | 4LDK (-) | ||
| 交通 |
京急本線 杉田 徒歩22分
|
||||
| 特徴 |
|
|---|---|
| セールスコメント | カースペース有。 |
| 採光面 | - | 構造/階数 | 木造/地上2階建 |
|---|---|---|---|
| 建ぺい率 | 50(%) | 容積率 | 80(%) |
| 駐車場 | 有 | 現況/引渡し | 空家/即時 |
| 土地権利 | 所有権 | 私道負担面積 | - |
| 接道状況 | 接道: 北東 道路幅: 6.5m | 用途地域 |
第一種低層住居専用地域
|
| セットバック | - | 法令上の制限 | - |
| 地目 | 宅地 | 地勢 | |
| 建築確認番号 | 都市計画 | 市街化区域 | |
| 取引態様 | 仲介 | ||
| 情報更新日 | 2026年05月16日 | 次回更新日 | 2026年05月30日 |
| 小学校区 | 横浜市立小田小学校 (神奈川県横浜市金沢区) この学区の他の物件を見る |
中学校区 | 小田中学校 (神奈川県横浜市) この学区の他の物件を見る |
|---|
| 価格 | 万円 | ||
|---|---|---|---|
| 年利率 | % |
||
| ボーナス払い | 返済年数 | ||
| 頭金 | 直接入力する | 万円 | |

毎月のご返済額 |
ボーナス(×年2回) |
物件価格4,480万円 |
カースペースは広々2台駐車可能です◎LDK21帖以上でゆったりとくつろげます♪