【3号棟】藤沢市新築戸建 2台駐車可 LDK18帖 神奈川県藤沢市本鵠沼4丁目|7,090万円の新築一戸建て|センチュリー21マイホーム
| 価格 | 7,090万円 ![]() |
||||
|---|---|---|---|---|---|
| 所在地 | 神奈川県藤沢市本鵠沼4丁目
この地域周辺の物件を見る |
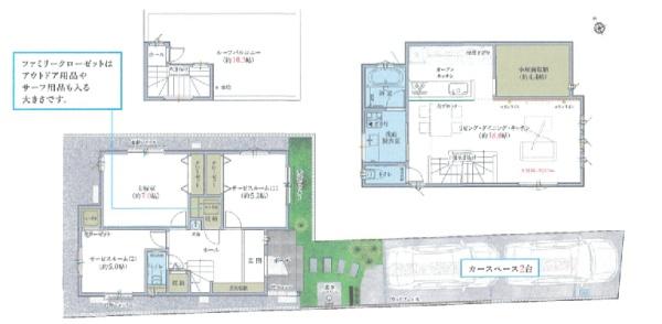
土地面積 | 115.64m² (34.98坪) | 建物面積 | 94.19m2 |
| 築年月 | 2026年5月築 | 間取り | 1SLDK (-) | ||
| 交通 |
小田急江ノ島線 本鵠沼 徒歩11分
江ノ島電鉄 石上 徒歩21分 |
||||
| 特徴 |
|
|---|---|
| セールスコメント | カースペース有。3棟販売。 |
| 採光面 | - | 構造/階数 | 木造/地上2階建 |
|---|---|---|---|
| 建ぺい率 | 50(%) | 容積率 | 80(%) |
| 駐車場 | 有 | 現況/引渡し | 建築中/相談 |
| 土地権利 | 所有権 | 私道負担面積 | - |
| 接道状況 | 接道: 東南 道路幅: 4m | 用途地域 |
第一種低層住居専用地域
|
| セットバック | - | 法令上の制限 | - |
| 地目 | 宅地 | 地勢 | |
| 建築確認番号 | 第2025SBC-確01209Y号 | 都市計画 | 市街化区域 |
| 取引態様 | 仲介 | ||
| 情報更新日 | 2026年05月16日 | 次回更新日 | 2026年05月30日 |
| 小学校区 | () |
中学校区 | 鵠沼中学校 (神奈川県藤沢市) この学区の他の物件を見る |
|---|
| 価格 | 万円 | ||
|---|---|---|---|
| 年利率 | % |
||
| ボーナス払い | 返済年数 | ||
| 頭金 | 直接入力する | 万円 | |

毎月のご返済額 |
ボーナス(×年2回) |
物件価格7,090万円 |
![]() |
![]() |
藤沢市本鵠沼4丁目
6990万円〜7490万円 |
小田急江ノ島線「本鵠沼」駅徒10分の立地♪家族の集まるLDKは18帖以上で広々と使用できます!