中区中古戸建 LDK19帖 ウッドデッキ カースペース3台 神奈川県横浜市中区本牧元町|5,180万円の中古一戸建て|センチュリー21マイホーム
| 価格 | 5,180万円 ![]() |
||||
|---|---|---|---|---|---|
| 所在地 | 神奈川県横浜市中区本牧元町
この地域周辺の物件を見る |
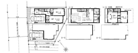
土地面積 | 238.9m² (72.26坪) | 建物面積 | 96.05m2 |
| 築年月 | 2019年9月築 | 間取り | 4LDK (-) | ||
| 交通 |
JR京浜東北・根岸線 山手 バス18分 本牧 停歩10分
みなとみらい線 元町・中華街 バス20分 本牧大里町 停歩3分 JR京浜東北・根岸線 根岸 徒歩46分 |
||||
| 特徴 |
|
|---|---|
| セールスコメント | - |
| 採光面 | - | 構造/階数 | 木造/地上2階建 |
|---|---|---|---|
| 建ぺい率 | 40(%) | 容積率 | 80(%) |
| 駐車場 | 有 | 現況/引渡し | 空家/即時 |
| 土地権利 | 所有権 | 私道負担面積 | - |
| 接道状況 | 接道: 南西 道路幅: 4.5m | 用途地域 |
第一種低層住居専用地域
|
| セットバック | - | 法令上の制限 | 高度地区;風致地区;景観法;宅地造成工事規制区域;急傾斜地崩壊危険区域;日影制限有 |
| 地目 | 宅地 | 地勢 | |
| 建築確認番号 | 都市計画 | 市街化区域 | |
| 取引態様 | 仲介 | ||
| 情報更新日 | 2026年05月16日 | 次回更新日 | 2026年05月30日 |
| 小学校区 | 横浜市立本牧南小学校 (神奈川県横浜市中区) この学区の他の物件を見る |
中学校区 | 大鳥中学校 (神奈川県横浜市中区) この学区の他の物件を見る |
|---|
| 価格 | 万円 | ||
|---|---|---|---|
| 年利率 | % |
||
| ボーナス払い | 返済年数 | ||
| 頭金 | 直接入力する | 万円 | |

毎月のご返済額 |
ボーナス(×年2回) |
物件価格5,180万円 |
令和1年9月築◎カースペース3台駐車可能♪敷地面積はなんと72坪以上!!