ライオンズマンション茅ヶ崎グランコースト 神奈川県茅ヶ崎市緑が浜|4,199万円の中古マンション|分譲住宅や新築物件|センチュリー21マイホーム
| 価格 | 4,199万円 ![]() |
||||
|---|---|---|---|---|---|
| 所在地 | 神奈川県茅ヶ崎市緑が浜
この地域周辺の物件を見る |
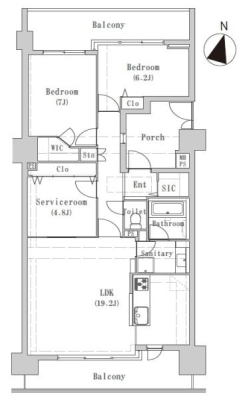
専有面積 | 81.88m2 | 築年月 | 2002年7月築 |
| 交通 |
JR東海道本線 辻堂 バス12分 茅ケ崎学園入口 停歩3分
|
管理費等 | 31,730円 | 修繕積立金 | 11,000円 | 所在階/階数 | 2階/地上8階建 | バルコニー面積 | 20.6m² |
| 間取り | 2SLDK (-) | ||||
| 特徴 |
|
|---|---|
| セールスコメント | - |
| 採光面 | 南 | 取引態様 | 仲介 |
|---|---|---|---|
| 現況 | 空室 | 引渡し | 即時 |
| 総戸数 | 82戸 | 構造 | RC造 |
| テラス面積 | - | 専用庭面積 | - |
| 駐車場 | 空無 | 駐輪場 | - |
| 建物権利 | - | 土地権利 | 所有権 |
| 用途地域 | 準工業地域 - - | 管理態様 | 管理形態:日勤 管理組合:なし 管理会社:- |
| 情報更新日 | 2026年04月10日 | 次回更新日 | 2026年04月24日 |
| 小学校区 | 茅ヶ崎市立汐見台小学校 (神奈川県茅ヶ崎市) この学区の他の物件を見る |
中学校区 | 松浪中学校 (神奈川県茅ヶ崎市) この学区の他の物件を見る |
|---|
| 価格 | 万円 | ||
|---|---|---|---|
| 年利率 | % |
||
| ボーナス払い | 返済年数 | ||
| 頭金 | 直接入力する | 万円 | |

毎月のご返済額 |
ボーナス(×年2回) |
物件価格4,199万円 |
サーフボード置場完備♪海まで徒歩5分!大切なペットと一緒に暮らせます♪