コスモ星川パークステージ 神奈川県横浜市保土ケ谷区星川1丁目|5,690万円の中古マンション|分譲住宅や新築物件|センチュリー21マイホーム
| 価格 | 5,690万円 ![]() |
||||
|---|---|---|---|---|---|
| 所在地 | 神奈川県横浜市保土ケ谷区星川1丁目
この地域周辺の物件を見る |
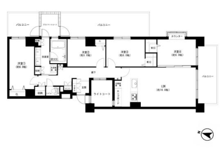
専有面積 | 71.55m2 | 築年月 | 1998年3月築 |
| 交通 |
相鉄本線 星川 徒歩3分
相鉄本線 天王町 徒歩13分 相鉄本線 和田町 徒歩15分 |
管理費等 | 9,400円 | 修繕積立金 | 9,900円 | 所在階/階数 | 1階/地上7階建 | バルコニー面積 | - |
| 間取り | 3LDK (-) | ||||
| 特徴 |
|
|---|---|
| セールスコメント | - |
| 採光面 | 南西 | 取引態様 | 仲介 |
|---|---|---|---|
| 現況 | 空室 | 引渡し | 相談 |
| 総戸数 | 56戸 | 構造 | RC造 |
| テラス面積 | - | 専用庭面積 | 18m² |
| 駐車場 | 空無 | 駐輪場 | - |
| 建物権利 | - | 土地権利 | 所有権 |
| 用途地域 | - - - | 管理態様 | 管理形態:日勤 管理組合:なし 管理会社:- |
| 情報更新日 | 2026年04月10日 | 次回更新日 | 2026年04月24日 |
| 小学校区 | 横浜市立星川小学校 (神奈川県横浜市保土ケ谷区) この学区の他の物件を見る |
中学校区 | 岩崎中学校 (神奈川県横浜市保土ケ谷区) この学区の他の物件を見る |
|---|
| 価格 | 万円 | ||
|---|---|---|---|
| 年利率 | % |
||
| ボーナス払い | 返済年数 | ||
| 頭金 | 直接入力する | 万円 | |

毎月のご返済額 |
ボーナス(×年2回) |
物件価格5,690万円 |
相鉄本線「星川」駅まで平坦徒歩3分の立地♪お庭付でガーデニング◎