町田市中古戸建 100坪超 地下車庫 駅徒8分 東京都町田市つくし野1丁目|5,900万円の中古一戸建て|センチュリー21マイホーム
| 価格 | 5,900万円 ![]() |
||||
|---|---|---|---|---|---|
| 所在地 | 東京都町田市つくし野1丁目
この地域周辺の物件を見る |
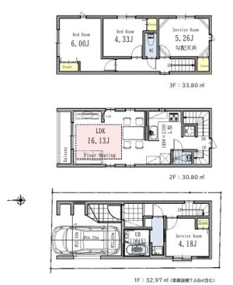
土地面積 | 346.97m² (104.95坪) | 建物面積 | 93.15m2 |
| 築年月 | 2019年11月築 | 間取り | 4LDK (-) | ||
| 交通 |
東急田園都市線 つくし野 徒歩8分
JR横浜線 成瀬 徒歩14分 |
||||
| 特徴 |
|
|---|---|
| セールスコメント | - |
| 採光面 | - | 構造/階数 | 木造/地上2階建 |
|---|---|---|---|
| 建ぺい率 | 40(%) | 容積率 | 80(%) |
| 駐車場 | 有 | 現況/引渡し | 居住中/相談 |
| 土地権利 | 所有権 | 私道負担面積 | - |
| 接道状況 | 接道: 北 道路幅: 6.2m 接道: 東 道路幅: 6m |
用途地域 |
第一種低層住居専用地域
|
| セットバック | - | 法令上の制限 | - |
| 地目 | 宅地 | 地勢 | |
| 建築確認番号 | 都市計画 | 市街化区域 | |
| 取引態様 | 仲介 | ||
| 情報更新日 | 2026年04月18日 | 次回更新日 | 2026年05月02日 |
| 小学校区 | 町田市立つくし野小学校 (東京都町田市) この学区の他の物件を見る |
中学校区 | 南成瀬中学校 (東京都町田市) この学区の他の物件を見る |
|---|
| 価格 | 万円 | ||
|---|---|---|---|
| 年利率 | % |
||
| ボーナス払い | 返済年数 | ||
| 頭金 | 直接入力する | 万円 | |

毎月のご返済額 |
ボーナス(×年2回) |
物件価格5,900万円 |
100坪超えの大きな敷地!広いお庭ではガーデニングなどが楽しめます◎大きな車も停められる地下車庫つき♪