神奈川県 横浜市瀬谷区下瀬谷 |横浜の不動産はセンチュリー21マイホーム
売買物件検索
新築一戸建て
中古一戸建て
中古マンション
土地
不動産投資
マンションカタログ
不動産売却
売却実績
住み替え
相続
空き家
離婚
不動産買取
任意売却
リースバック
売却査定
動画チャンネル
ファイナンシャルプランナー
保険について
会社概要
アクセス
スタッフ紹介
お客様の声
お知らせ
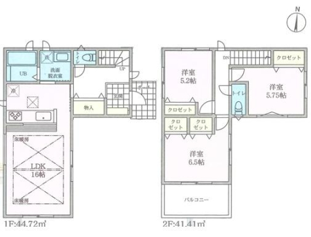
瀬谷区新築戸建 SIC 南面バルコニー|横浜市瀬谷区下瀬谷2丁目の新築一戸建て
床暖房完備で冬は暖かく過ごせます♪SICや各居室に収納がありお部屋が片付きます!
【3号棟】瀬谷区新築戸建 南面バルコニー 床暖房|横浜市瀬谷区下瀬谷2丁目の新築一戸建て
南面バルコニーのため、陽当り・通風良好◎床暖房で冬の寒い時期を快適に乗り越そう!
瀬谷区新築戸建 LDK18帖 2WIC 3台駐車可 SIC|横浜市瀬谷区下瀬谷3丁目の新築一戸建て
カースペースは3台駐車可能です◎WICやパントリー等収納豊富でお部屋が片付きます♪
【2号棟】瀬谷区新築戸建 2台駐車可 WIC |横浜市瀬谷区下瀬谷3丁目の新築一戸建て
2駅利用可能で通勤や通学に便利!WICなど収納豊富でお部屋が片付きます♪角地のため通風良好◎
東京都の市区町村を選択
神奈川県の市区町村を選択
墨田区の町名を選択
大田区の町名を選択
世田谷区の町名を選択
町田市の町名を選択
横浜市西区の町名を選択
横浜市南区の町名を選択
横浜市中区の町名を選択
横浜市緑区の町名を選択
横浜市戸塚区の町名を選択
横浜市青葉区の町名を選択
横浜市瀬谷区の町名を選択
横浜市栄区の町名を選択
横浜市保土ケ谷区の町名を選択
横浜市鶴見区の町名を選択
横浜市泉区の町名を選択
横浜市港南区の町名を選択
横浜市港北区の町名を選択
横浜市金沢区の町名を選択
横浜市都筑区の町名を選択
横浜市神奈川区の町名を選択
横浜市磯子区の町名を選択
横浜市旭区の町名を選択
川崎市宮前区の町名を選択
川崎市麻生区の町名を選択
川崎市多摩区の町名を選択
川崎市高津区の町名を選択
川崎市幸区の町名を選択
川崎市川崎区の町名を選択
川崎市中原区の町名を選択
相模原市南区の町名を選択
相模原市緑区の町名を選択
相模原市中央区の町名を選択
藤沢市の町名を選択
茅ヶ崎市の町名を選択
三浦郡葉山町の町名を選択
逗子市の町名を選択
鎌倉市の町名を選択
横須賀市の町名を選択
大和市の町名を選択
座間市の町名を選択
海老名市の町名を選択
綾瀬市の町名を選択
小田原市の町名を選択
JR東海道本線の駅を選択
JR京浜東北・根岸線の駅を選択
JR横須賀線の駅を選択
JR南武線の駅を選択
JR横浜線の駅を選択
京王相模原線の駅を選択
小田急多摩線の駅を選択
東急東横線の駅を選択
東急田園都市線の駅を選択
京急本線の駅を選択
JR鶴見線の駅を選択
横浜市営地下鉄ブルーラインの駅を選択
金沢シーサイドラインの駅を選択
東急こどもの国線の駅を選択
京急逗子線の駅を選択
京急大師線の駅を選択
相鉄いずみ野線の駅を選択
みなとみらい線の駅を選択
横浜市営地下鉄グリーンラインの駅を選択
相鉄新横浜線の駅を選択
湘南新宿ライン高海の駅を選択
湘南新宿ライン宇須の駅を選択
東急目黒線の駅を選択
東急大井町線の駅を選択
JR相模線の駅を選択
湘南モノレールの駅を選択
江ノ島電鉄の駅を選択
京急久里浜線の駅を選択
相鉄本線の駅を選択
JR埼京線の駅を選択
都営浅草線の駅を選択
東京モノレールの駅を選択
小田急小田原線の駅を選択
東急池上線の駅を選択
京急空港線の駅を選択
小田急江ノ島線の駅を選択
JR総武線の駅を選択
東急新横浜線の駅を選択
横浜市青葉区の小学校を選択
藤沢市の小学校を選択
横浜市泉区の小学校を選択
横浜市緑区の小学校を選択
横浜市旭区の小学校を選択
横浜市磯子区の小学校を選択
横浜市都筑区の小学校を選択
横浜市鶴見区の小学校を選択
横浜市南区の小学校を選択
横浜市西区の小学校を選択
横浜市神奈川区の小学校を選択
横浜市港南区の小学校を選択
横浜市戸塚区の小学校を選択
横浜市港北区の小学校を選択
横浜市栄区の小学校を選択
横浜市金沢区の小学校を選択
横浜市中区の小学校を選択
横浜市保土ケ谷区の小学校を選択
墨田区の小学校を選択
横浜市瀬谷区の小学校を選択
大田区の小学校を選択
川崎市川崎区の小学校を選択
川崎市中原区の小学校を選択
川崎市多摩区の小学校を選択
川崎市麻生区の小学校を選択
川崎市高津区の小学校を選択
川崎市幸区の小学校を選択
川崎市宮前区の小学校を選択
相模原市南区の小学校を選択
相模原市中央区の小学校を選択
相模原市緑区の小学校を選択
横須賀市の小学校を選択
鎌倉市の小学校を選択
茅ヶ崎市の小学校を選択
逗子市の小学校を選択
大和市の小学校を選択
海老名市の小学校を選択
綾瀬市の小学校を選択
三浦郡葉山町の小学校を選択
町田市の小学校を選択
横浜市戸塚区の中学校を選択
横浜市鶴見区の中学校を選択
川崎市川崎区の中学校を選択
川崎市麻生区の中学校を選択
横須賀市の中学校を選択
鎌倉市の中学校を選択
川崎市中原区の中学校を選択
川崎市多摩区の中学校を選択
川崎市高津区の中学校を選択
川崎市宮前区の中学校を選択
川崎市幸区の中学校を選択
墨田区の中学校を選択
相模原市南区の中学校を選択
相模原市中央区の中学校を選択
大田区の中学校を選択
茅ヶ崎市の中学校を選択
逗子市の中学校を選択
大和市の中学校を選択
海老名市の中学校を選択
綾瀬市の中学校を選択
三浦郡葉山町の中学校を選択
横浜市西区の中学校を選択
横浜市港南区の中学校を選択
横浜市旭区の中学校を選択
横浜市南区の中学校を選択
横浜市青葉区の中学校を選択
横浜市金沢区の中学校を選択
横浜市瀬谷区の中学校を選択
横浜市磯子区の中学校を選択
横浜市保土ケ谷区の中学校を選択
横浜市中区の中学校を選択
横浜市栄区の中学校を選択
横浜市神奈川区の中学校を選択
横浜市港北区の中学校を選択
横浜市泉区の中学校を選択
横浜市緑区の中学校を選択
横浜市都筑区の中学校を選択
町田市の中学校を選択
相模原市緑区の中学校を選択
藤沢市の中学校を選択
小田原市の中学校を選択
SEARCH
NEWS/BLOG
CONTENTS