岡津中学校(横浜市泉区)|横浜の不動産はセンチュリー21マイホーム

CONTACT

岡津中学校(横浜市泉区)の不動産情報一覧

種別で絞り込む 新築一戸建て(新築一軒家) 中古一戸建て・中古住宅 中古マンション 土地・売地 投資用・収益物件
19件中1〜19件を表示
表示件数 並び順
新築一戸建て 神奈川県横浜市泉区岡津町の新築一戸建ての完成予想図(外観)

全31棟の綺麗な街並みの開発分譲地♪前面道路6m以上・カースペースは2台駐車可能です◎

価格 4,180万円 
所在地 神奈川県横浜市泉区岡津町
交通 相鉄いずみ野線 弥生台駅 徒歩23分
間取り 4LDK
建物面積 92.73u 土地面積 130.01u(39.33坪)
築年月 2025年8月 建物構造 一戸建て/木造
36枚  
中古一戸建て 神奈川県横浜市泉区桂坂の中古一戸建ての完成予想図(外観)

前面道路6m以上で駐車もしやすい!開放感のある吹抜け◎WICなど収納豊富でお部屋が片付きます♪

価格 4,180万円 
所在地 神奈川県横浜市泉区桂坂
交通 相鉄いずみ野線 弥生台駅 徒歩13分
間取り 5LDK
建物面積 125.35u 土地面積 172.96u(52.32坪)
築年月 1996年3月 建物構造 一戸建て/木造
36枚  
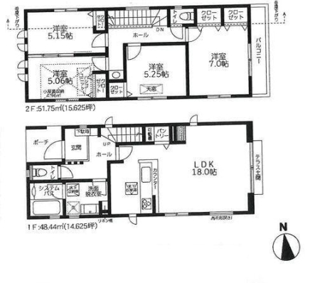
新築一戸建て 神奈川県横浜市泉区岡津町の新築一戸建ての間取り図

全31棟の綺麗な街並みの開発分譲地♪前面道路6m以上・カースペースは2台駐車可能です◎

価格 4,180万円 
所在地 神奈川県横浜市泉区岡津町
交通 相鉄いずみ野線 弥生台駅 徒歩23分
間取り 4LDK
建物面積 92.73u 土地面積 130.01u(39.33坪)
築年月 2025年4月 建物構造 一戸建て/木造
11枚  

会員限定 【会員様限定で公開中!】

WEB会員限定物件
新築一戸建て 神奈川県横浜市泉区岡津町の新築一戸建ての間取り図

全31棟の綺麗な街並みの開発分譲地♪前面道路6m以上・カースペースは2台駐車可能です◎

価格 4,280万円 
所在地 神奈川県横浜市泉区岡津町
交通 相鉄いずみ野線 弥生台駅 徒歩23分
間取り 4LDK
建物面積 102.68u 土地面積 130.01u(39.33坪)
築年月 2025年4月 建物構造 一戸建て/木造
11枚  
新築一戸建て 神奈川県横浜市泉区岡津町の新築一戸建ての完成予想図(外観)

全31棟の綺麗な街並みの開発分譲地♪前面道路6m以上・カースペースは2台駐車可能です◎

価格 4,380万円 
所在地 神奈川県横浜市泉区岡津町
交通 相鉄いずみ野線 弥生台駅 徒歩23分
間取り 4LDK
建物面積 67.7u 土地面積 127.21u(38.48坪)
築年月 2025年8月 建物構造 一戸建て/木造
36枚  
 
新築一戸建て 神奈川県横浜市泉区岡津町の新築一戸建ての間取り図

全31棟の綺麗な街並みの開発分譲地♪前面道路6m以上・カースペースは2台駐車可能です◎

価格 4,380万円 
所在地 神奈川県横浜市泉区岡津町
交通 相鉄いずみ野線 弥生台駅 徒歩23分
間取り 4LDK
建物面積 97.7u 土地面積 127.21u(38.48坪)
築年月 2025年5月 建物構造 一戸建て/木造
11枚  

会員限定 【会員様限定で公開中!】

WEB会員限定物件
新築一戸建て 神奈川県横浜市泉区岡津町の新築一戸建ての間取り図

カースペースは2台駐車可能です◎家族の集まるLDKは広々18帖以上でゆったりくつろげます♪収納豊富です!

価格 4,580万円 
所在地 神奈川県横浜市泉区岡津町
交通 相鉄いずみ野線 緑園都市駅 徒歩17分
間取り 4LDK
建物面積 100.19u 土地面積 133.47u(40.37坪)
築年月 2025年7月 建物構造 一戸建て/木造
11枚  
新築一戸建て 神奈川県横浜市泉区岡津町の新築一戸建ての間取り図

全31棟の綺麗な街並みの開発分譲地♪18号棟は嬉しい家具付き販売住戸♪・カースペースは2台駐車可能です◎

価格 4,660万円 
所在地 神奈川県横浜市泉区岡津町
交通 相鉄いずみ野線 弥生台駅 徒歩23分
間取り 4LDK
建物面積 101.02u 土地面積 138.03u(41.75坪)
築年月 2025年8月 建物構造 一戸建て/木造
11枚  

会員限定 【会員様限定で公開中!】

WEB会員限定物件

会員限定 【会員様限定で公開中!】

WEB会員限定物件

会員限定 【会員様限定で公開中!】

WEB会員限定物件

会員限定 【会員様限定で公開中!】

WEB会員限定物件
表示件数 並び順


会員登録で住まい探しをもっと便利に

SEARCH

物件検索

マイホームの不動産売却 リフォームリノベーション ご成約いただいたお客様の声

NEWS/BLOG

お知らせ・ブログ

もっと見る

CONTENTS

お役立ち情報

  • お金のプロに相談しよう 安心の資金計画 FP相談について
  • マンションカタログはこちら
  • 不動産購入時に加入しておくべき5大保険
  • 契約などしっかり流れを把握 住宅購入の流れについて
  • 中国語対応いたします
マイホームの動画チャンネル C21マイホーム公式インスタグラム
C21マイホーム外観

株式会社マイホーム

  • 〒220-0004
    横浜市西区北幸2-8-4横浜
    西口KNビル1F
  • TEL 045-320-0021
  • 営業時間 9:00〜20:00
  • 定休日 毎水曜、第1・2・3・4火曜日

お客様へ

不動産情報はセンチュリー21マイホームにお任せください!センチュリー21マイホームでは不動産情報を豊富にご用意しております。 新築戸建て・土地・マンションをお探しの方はぜひセンチュリー21マイホームまでお問い合わせください。信頼あるスタッフがあなたのマイホーム探しのお手伝いをさせて頂きます。