川崎大師駅 一戸建て |横浜の不動産はセンチュリー21マイホーム

CONTACT

川崎大師駅 一戸建て の不動産情報一覧

種別で絞り込む 新築一戸建て(新築一軒家) 中古一戸建て・中古住宅 中古マンション 土地・売地 投資用・収益物件
14件中1〜14件を表示
表示件数 並び順
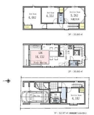
新築一戸建て 神奈川県川崎市川崎区桜本1丁目の新築一戸建ての間取り図

家族との会話が弾む対面キッチン採用!収納豊富でお部屋が片付きます♪

価格 3,180万円 
所在地 神奈川県川崎市川崎区桜本1丁目
交通 京急大師線 川崎大師駅 徒歩23分
間取り 3LDK
建物面積 70.06u 土地面積 37.64u(11.39坪)
築年月 2026年4月 建物構造 一戸建て/木造
9枚  

会員限定 【会員様限定で公開中!】

WEB会員限定物件

会員限定 【会員様限定で公開中!】

WEB会員限定物件

会員限定 【会員様限定で公開中!】

WEB会員限定物件

会員限定 【会員様限定で公開中!】

WEB会員限定物件

会員限定 【会員様限定で公開中!】

WEB会員限定物件

会員限定 【会員様限定で公開中!】

WEB会員限定物件

会員限定 【会員様限定で公開中!】

WEB会員限定物件

会員限定 【会員様限定で公開中!】

WEB会員限定物件

会員限定 【会員様限定で公開中!】

WEB会員限定物件
 
新築一戸建て 神奈川県川崎市川崎区中瀬3丁目の新築一戸建ての間取り図

京急大師線「川崎大師」駅徒7分の立地!各居室に収納があるためお部屋が片付きます♪

価格 5,180万円 
所在地 神奈川県川崎市川崎区中瀬3丁目
交通 京急大師線 川崎大師駅 徒歩7分
間取り 4LDK
建物面積 100.57u 土地面積 51.46u(15.57坪)
築年月 2025年11月 建物構造 一戸建て/木造
11枚  

会員限定 【会員様限定で公開中!】

WEB会員限定物件

会員限定 【会員様限定で公開中!】

WEB会員限定物件
新築一戸建て 神奈川県川崎市川崎区昭和2丁目の新築一戸建ての間取り図

ビルトインガレージで雨や風から愛車を守ります♪家族の集まるLDKは19帖以上でゆったりとした空間に!

価格 6,350万円 値下がり
所在地 神奈川県川崎市川崎区昭和2丁目
交通 京急大師線 川崎大師駅 徒歩12分
間取り 2SLDK
建物面積 95.84u 土地面積 71.93u(21.76坪)
築年月 2026年1月 建物構造 一戸建て/木造
10枚  
表示件数 並び順


会員登録で住まい探しをもっと便利に

SEARCH

物件検索

マイホームの不動産売却 リフォームリノベーション ご成約いただいたお客様の声

NEWS/BLOG

お知らせ・ブログ

もっと見る

CONTENTS

お役立ち情報

  • お金のプロに相談しよう 安心の資金計画 FP相談について
  • マンションカタログはこちら
  • 不動産購入時に加入しておくべき5大保険
  • 契約などしっかり流れを把握 住宅購入の流れについて
  • 中国語対応いたします
マイホームの動画チャンネル C21マイホーム公式インスタグラム
C21マイホーム外観

株式会社マイホーム

  • 〒220-0004
    横浜市西区北幸2-8-4横浜
    西口KNビル1F
  • TEL 045-320-0021
  • 営業時間 9:00〜20:00
  • 定休日 毎水曜、第1・2・3・4火曜日

お客様へ

川崎大師駅 不動産情報はセンチュリー21マイホームにお任せください!センチュリー21マイホームでは不動産情報を豊富にご用意しております。川崎大師駅  新築戸建て・土地・マンションをお探しの方はぜひセンチュリー21マイホームまでお問い合わせください。信頼あるスタッフがあなたのマイホーム探しのお手伝いをさせて頂きます。