鎌倉市大町3丁目の分譲住宅一覧|横浜の不動産はセンチュリー21マイホーム

CONTACT
TOPページ >
物件検索 >
分譲住宅特集一覧 >
鎌倉市大町3丁目の分譲住宅特集一覧
2件中1〜2件を表示
  • 1
新築一戸建て
価格 6,680万円 
所在地 鎌倉市大町3丁目
交通 湘南新宿ライン宇須 鎌倉駅 徒歩21分
建物面積 99.36m2 土地面積 136.20m2

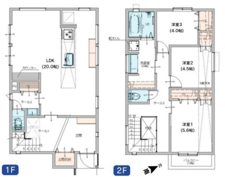
カースペースは2台駐車可能◎LDKは広々20帖!乾太くんも設置予定!こだわりのデザイナーズハウス♪

新築一戸建て
価格 6,780万円 
所在地 鎌倉市大町3丁目
交通 湘南新宿ライン宇須 鎌倉駅 徒歩22分
建物面積 101.85m2 土地面積 137.15m2

カースペースは2台駐車可能◎LDKは広々20帖超!乾太くんも設置予定!こだわりのデザイナーズハウス♪

2件中1〜2件を表示
  • 1
会員登録で住まい探しをもっと便利に

SEARCH

物件検索

マイホームの不動産売却 リフォームリノベーション ご成約いただいたお客様の声

NEWS/BLOG

お知らせ・ブログ

もっと見る

CONTENTS

お役立ち情報

  • お金のプロに相談しよう 安心の資金計画 FP相談について
  • マンションカタログはこちら
  • 不動産購入時に加入しておくべき5大保険
  • 契約などしっかり流れを把握 住宅購入の流れについて
  • 中国語対応いたします
マイホームの動画チャンネル C21マイホーム公式インスタグラム
C21マイホーム外観

株式会社マイホーム

  • 〒220-0004
    横浜市西区北幸2-8-4横浜
    西口KNビル1F
  • TEL 045-320-0021
  • 営業時間 9:00〜20:00
  • 定休日 毎水曜、第1・2・3・4火曜日