藤沢市善行6丁目の分譲住宅一覧|横浜の不動産はセンチュリー21マイホーム

CONTACT
TOPページ >
物件検索 >
分譲住宅特集一覧 >
藤沢市善行6丁目の分譲住宅特集一覧
3件中1〜3件を表示
  • 1
新築一戸建て
価格 4,999万円 
所在地 藤沢市善行6丁目
交通 小田急江ノ島線 善行駅 徒歩9分
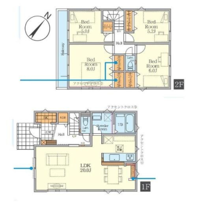
建物面積 105.16m2 土地面積 130.16m2

ZEH水準省エネ住宅!小田急江ノ島線「善行」駅徒9分の立地◎家族の集まるLDKは広々21帖以上♪

新築一戸建て
価格 4,999万円 
所在地 藤沢市善行6丁目
交通 小田急江ノ島線 善行駅 徒歩9分
建物面積 103.51m2 土地面積 130.19m2

ZEH水準省エネ住宅!収納豊富でお部屋が片付きます◎家族の集まるLDKは広々20帖以上♪

新築一戸建て
価格 5,599万円 
所在地 藤沢市善行6丁目
交通 小田急江ノ島線 善行駅 徒歩9分
建物面積 103.91m2 土地面積 132.26m2

ZEH水準省エネ住宅!家族の集まるLDKは広々20帖以上♪WICなど収納豊富でお部屋が片付きます◎

3件中1〜3件を表示
  • 1
会員登録で住まい探しをもっと便利に

SEARCH

物件検索

マイホームの不動産売却 リフォームリノベーション ご成約いただいたお客様の声

NEWS/BLOG

お知らせ・ブログ

もっと見る

CONTENTS

お役立ち情報

  • お金のプロに相談しよう 安心の資金計画 FP相談について
  • マンションカタログはこちら
  • 不動産購入時に加入しておくべき5大保険
  • 契約などしっかり流れを把握 住宅購入の流れについて
  • 中国語対応いたします
マイホームの動画チャンネル C21マイホーム公式インスタグラム
C21マイホーム外観

株式会社マイホーム

  • 〒220-0004
    横浜市西区北幸2-8-4横浜
    西口KNビル1F
  • TEL 045-320-0021
  • 営業時間 9:00〜20:00
  • 定休日 毎水曜、第1・2・3・4火曜日