【A号棟】栄区新築戸建 納戸 南面バルコニー 神奈川県横浜市栄区飯島町|3,480万円の新築一戸建て|センチュリー21マイホーム
| 価格 | 3,480万円 ![]() |
||||
|---|---|---|---|---|---|
| 所在地 | 神奈川県横浜市栄区飯島町
この地域周辺の物件を見る |
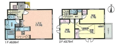
土地面積 | 125.04m² (37.82坪) | 建物面積 | 96.26m2 |
| 築年月 | 2025年12月築 | 間取り | 3SLDK (-) | ||
| 交通 |
JR京浜東北・根岸線 本郷台 徒歩35分
|
||||
| 特徴 |
|
|---|---|
| セールスコメント | 2棟販売。敷地面積に路地上部分含。 |
| 採光面 | - | 構造/階数 | 木造/地上2階建 |
|---|---|---|---|
| 建ぺい率 | 40(%) | 容積率 | 80(%) |
| 駐車場 | - | 現況/引渡し | 新築/相談 |
| 土地権利 | 所有権 | 私道負担面積 | - |
| 接道状況 | 接道: 東 道路幅: 3.1m | 用途地域 |
第一種低層住居専用地域
|
| セットバック | - | 法令上の制限 | - |
| 地目 | 宅地 | 地勢 | |
| 建築確認番号 | 都市計画 | 市街化区域 | |
| 取引態様 | 仲介 | ||
| 情報更新日 | 2026年02月07日 | 次回更新日 | 2026年02月21日 |
| 小学校区 | 横浜市立飯島小学校 (神奈川県横浜市栄区) この学区の他の物件を見る |
中学校区 | 飯島中学校 (神奈川県横浜市栄区) この学区の他の物件を見る |
|---|
| 価格 | 万円 | ||
|---|---|---|---|
| 年利率 | % |
||
| ボーナス払い | 返済年数 | ||
| 頭金 | 直接入力する | 万円 | |

毎月のご返済額 |
ボーナス(×年2回) |
物件価格3,480万円 |
![]() |
![]() |
横浜市栄区飯島町
3480万円〜3680万円 |
南面バルコニーのため、陽当り・通風良好!納戸等収納があるためお部屋が片付きます♪