都築区中古戸建 駅歩10分 2路線利用可 リフォーム済 神奈川県横浜市都筑区川和町|3,480万円の中古一戸建て|センチュリー21マイホーム
| 価格 | 3,480万円 ![]() |
||||
|---|---|---|---|---|---|
| 所在地 | 神奈川県横浜市都筑区川和町
この地域周辺の物件を見る |
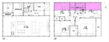
土地面積 | 74.14m² (22.42坪) | 建物面積 | 72.86m2 |
| 築年月 | 2000年5月築 | 間取り | 3LDK (-) | ||
| 交通 |
横浜市営地下鉄グリーンライン 川和町 徒歩10分
東急田園都市線 市が尾 徒歩18分 |
||||
| 特徴 |
|
|---|---|
| セールスコメント | カースペースあり(車種制限あり)。税制優遇,住宅ローン控除対象物件。 |
| 採光面 | - | 構造/階数 | 木造/地上2階建 |
|---|---|---|---|
| 建ぺい率 | 60(%) | 容積率 | 200(%) |
| 駐車場 | 有 | 現況/引渡し | 空家/即時 |
| 土地権利 | 所有権 | 私道負担面積 | あり 11m² 持分:1/2 |
| 接道状況 | 接道: 北西 12m 公道 道路幅: 5m 接道: 西 1.1m 公道 道路幅: 7m |
用途地域 |
第一種住居地域
|
| セットバック | - | 法令上の制限 | - |
| 地目 | 宅地 | 地勢 | |
| 建築確認番号 | 都市計画 | 市街化区域 | |
| 取引態様 | 仲介 | ||
| 情報更新日 | 2026年02月07日 | 次回更新日 | 2026年02月21日 |
| 小学校区 | 横浜市立川和小学校 (神奈川県横浜市都筑区) この学区の他の物件を見る |
中学校区 | 川和中学校 (神奈川県横浜市都筑区) この学区の他の物件を見る |
|---|
| 価格 | 万円 | ||
|---|---|---|---|
| 年利率 | % |
||
| ボーナス払い | 返済年数 | ||
| 頭金 | 直接入力する | 万円 | |

毎月のご返済額 |
ボーナス(×年2回) |
物件価格3,480万円 |
川和町駅平坦徒歩10分。カースペースあり。植栽、家庭菜園スペースもあるので楽しんでください♪